建立横跨英国的铁路标准轨距的斗争在129年前就结束了。
那么为什么我们今天仍然有变化?
布鲁内尔广泛衡量线的终结
帕丁顿到彭赞斯,1892年5月20到23日的周末。铁路工人破坏了最后一段伊桑巴德•金德姆•布鲁内尔宽尺轨道。他们将213距离南威尔士铁路的标准规范换成了213英里,截止了铁路最分裂和有争议的章节之一。
先驱工程师布鲁内尔和乔治·斯蒂芬森他们都试图在英国铁路上建立铁路之间的标准距离。
一项标准将创建一个全国性的铁路线网络,并首次使火车能够不受基础设施变化的影响而运行。
布鲁内尔相信,他的7英尺1/4宽轨铁路将意味着更快、更顺畅的旅行,他在连接帕丁贡和英格兰西南部的大西部铁路上的成功就证明了这一点。
乔治·斯蒂芬森(George Stephenson)根据早期铁路建造时马匹和大车的需要,倾向于在铁轨之间设置4英尺8.5英寸的高度。
新技术的新标准
John Page是我们存档的记录控制器,描述了布鲁内尔作为一个激进的:“Stephenson衡量来自乔治18世纪初铁路的煤矿铁路的经验,并维持了马车仪表。
布鲁内尔为一项新技术提出了一种新的轨距——把马车抛在身后,为定制的机车设计一个定制的轨距。他相信他的计量器会使旅行更快更顺利。
“宽轨上的乘客体验很好。当宽轨达到标准轨距时,问题就来了,因为乘客需要换车才能继续他们的旅程。”
冲突既是个人的也是职业的;布鲁内尔发现自己的对手是站在父亲乔治一边的密友罗伯特·斯蒂芬森。
尽管布鲁内尔坚信更宽的铁轨才是更好的设计,但在接下来的几十年里,大多数铁路都采用了斯蒂芬森的轨距,宽轨距最终被埋没了。
根据“英国铁路历史”的牛津伴侣的牛津伴侣',现有的赛道,铁路公司在大约1860年之后,没有更多的宽大仪表轨道。“在没有赔偿的情况下,实现了衡量标准委员会的建议”。
约翰说:“布鲁内尔去世(1859年),广义量规的未来也不复存在,我认为这绝非巧合。”
“这证明了布鲁宁的力量和影响力和他的直觉愿景,这种宽容量存在,并继续扩大直到他的死亡。当您认为广泛的仪表扩展到仅544次轨道里程并且受到1846年的铁路监管(仪表)的限制时,它永远不会超过Stephenson衡量。“
Brian Whitney是一家专门从事网络铁轨的工程专家,说:“这是正确的吗?亚搏彩票软件官网我不认为我知道。这是大多数规则,几乎在18世纪中期。“
维多利亚时代铁路革命的遗产
但是宽容度末端的结束并不意味着一个完全标准的铁路。事实上,我们继续处理我们今天的轨道设计中的前辈的变化。
然而,在1948年英国铁路公司成立后的几十年里,有了更多的标准化,将铁路归一家运营商管理。
布莱恩说:“从大约1970年开始,我们已经相当标准,只使用三种[类型]的铁路。你需要有点谨慎 - 无处不在的是一种轨道。“
对于我们来说,铁路的差异会让我们在一段铁路损坏或磨损过度而无法安全运行时更换铁轨变得更具挑战性和耗时。
在铁路的某些部分,开关和交叉口(从一条轨道到另一个轨道的导管轨道的可移动部分并允许它们越过路径)已经用定制的轨道或专门设计的流动交叉构成。
这是专为那个精确位置设计和制造的轨道。我们必须创造一个新的世界;不可能用现成的产品来替换它。
在其他地方,我们有Bullhead Rail,必须用Bullhead Rail取代;我们更常见的平底轨道与它不相容。
此外,当我们在磨损的轨道旁边安装一个新的轨道时,我们会在焊接过程中融入其中需要混合的轮廓。我们倾向于在曲线上获得更大的差异,导轨比直线轨道更具显着磨损。
今天英国有三种类型的铁路……
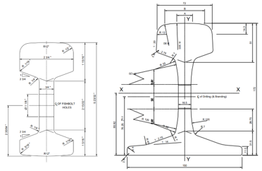
斗牛头导轨
它可以追溯到维多利亚时代,以栏杆末端的形状命名(顶部和底部厚,中间薄)。
它是我们的铁路最不常见的并且通常在三级线或更安静的二级铁路航线上发现,而不是在繁忙的主线上,我们需要更频繁地更新。它也仍然在伦敦地下找到。
布莱恩说:“低速度、低吨位、不那么关键的铁路将在不更新的情况下维持更长的时间。以较低的速度更新一个交通流量很小的设备是不划算的。”
牛头轨道必须替换为牛头轨道,因为它的设计附加到一个特殊的基础板称为椅子,坐在枕木的顶部。
平底轨道(两种尺寸)
平底轨道被开发为Bullhead Rail的替代品。
它可以追溯到20世纪50年代,今天在我们的大部分铁路上使用。就像它听起来的那样,它的底部很宽,很平。这条更大的钢轨是对旧钢轨设计的改进;这意味着更强的赛道持续时间更长。
它有两种尺寸 - 56kg和60kg,我们自2000年以来已经使用过。
布莱恩说:“一般趋势是增加的大小增加刚度铁路和支持高负载的能力…什么是完全足够100年前减少列车以每小时60英里不是有用的或经济更多的列车以每小时125英里的速度。”
真正使它不同于牛头导轨的是形状,我们通常不需要把它连接到轨枕上的一个特定的底板上。相反,我们可以直接把它固定在卧铺上。
